Проект дома Шале 99
Проект дома Шале 99
Стоимость строительства
от 3 900 000 руб.
Стоимость
строительства
от 3 900 000 руб.
Площадь
99 м2
99 м2
Размер
8 х 12
8 х 12
Срок строительства
31 день
31 день
Площадь
99 м2
99 м2
Размер
8 х 12
8 х 12
2 спальни
1 санузла
Терраса
для отдыха
для отдыха
Срок строительства
31 день
31 день
2 спальни
1 санузла
Терраса
для отдыха
для отдыха
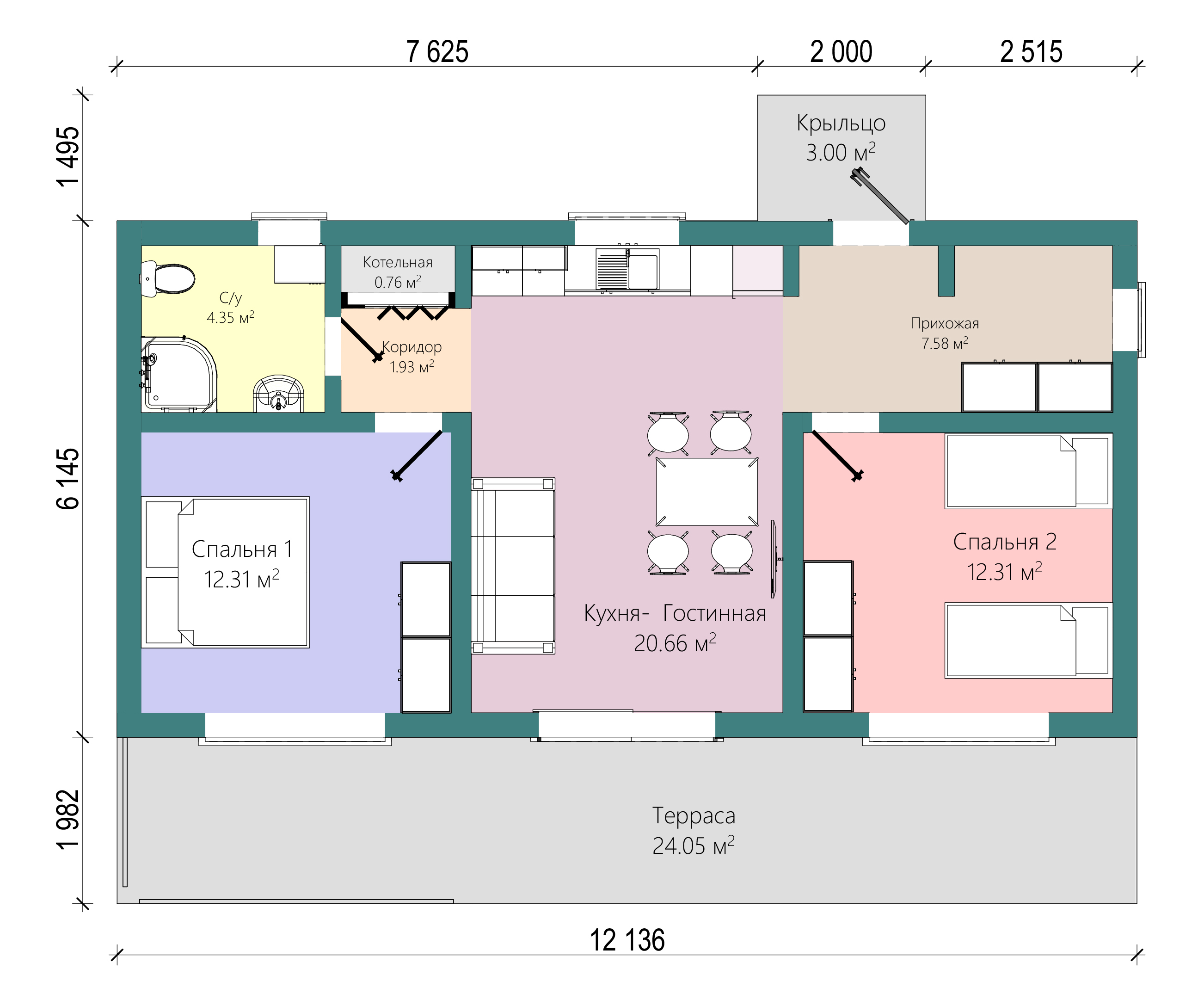
Планировки дома
Вы не просто приобретаете дом — Вы воплощаете мечту
Планировки дома
Вы не просто приобретаете дом — Вы воплощаете мечту
Общая площадь:
87 м2
87 м2
Жилая площадь
60 м2
60 м2
Площадь террасы
24 м2
24 м2
Габариты
8 × 12 м
8 × 12 м
2
1
1
2
1
1
О проекте
Шале 99
«Шале 99» — продуманное пространство для комфортной жизни всей семьи.
Пусть вас не обманывает размер нашего дома «Шале 99» В этом уютном доме с эффективной планировкой достаточно места для приёма гостей. Ваши мечты станут реальностью, когда вы создадите свою собственную зону комфорта. Возвращайтесь домой после долгого дня и проводите вечера на просторной крытой террасе, или наслаждайтесь утренним завтраком на свежем воздухе.
О проекте
Шале 99
«Шале 99» — продуманное пространство для комфортной жизни всей семьи.
Пусть вас не обманывает размер нашего дома «Шале 99» В этом уютном доме с эффективной планировкой достаточно места для приёма гостей. Ваши мечты станут реальностью, когда вы создадите свою собственную зону комфорта. Возвращайтесь домой после долгого дня и проводите вечера на просторной крытой террасе, или наслаждайтесь утренним завтраком на свежем воздухе.
Комплектация
дома Шале 99
Комплектация
дома Шале 99
тёплый контур
1. Фундамент ( свайно-винтовой) + антикоррозийная защита.
2. Теплый контур ( полы, стены, потолок) + огне\био защита, Ветрозащита, сетка от грызунов.
3. Крыша ( перекрытия по госту ) + кровля в темный, матовый профлист с выбором цвета.
4. Окна и дверь (пяти-камерные, энерго-сберегающие окна, двухконтурная входная дверь)
5. Вентиляция.
6. Водосточная система.
2. Теплый контур ( полы, стены, потолок) + огне\био защита, Ветрозащита, сетка от грызунов.
3. Крыша ( перекрытия по госту ) + кровля в темный, матовый профлист с выбором цвета.
4. Окна и дверь (пяти-камерные, энерго-сберегающие окна, двухконтурная входная дверь)
5. Вентиляция.
6. Водосточная система.
предчистовая отделка
1. Коммуникации ( подвод/разводка по дому)
2. Фасадная отделка ( Сайдинг, мягкий фасад, ПВХ, Металл, проф-лист, фасадные панели, имитация бруса)
3. полусухая стяжка пола
4. Внутренняя отделка гипсокартоном.
2. Фасадная отделка ( Сайдинг, мягкий фасад, ПВХ, Металл, проф-лист, фасадные панели, имитация бруса)
3. полусухая стяжка пола
4. Внутренняя отделка гипсокартоном.
Под ключ
1. Коммуникации ( подвод/разводка по дому)
2. Фасадная отделка ( Сайдинг, мягкий фасад, ПВХ, Металл, проф-лист, фасадные панели, имитация бруса)
3. полусухая стяжка пола
4. Внутренняя отделка гипсокартоном.
2. Фасадная отделка ( Сайдинг, мягкий фасад, ПВХ, Металл, проф-лист, фасадные панели, имитация бруса)
3. полусухая стяжка пола
4. Внутренняя отделка гипсокартоном.
тёплый контур
1. Фундамент ( свайно-винтовой) + антикоррозийная защита.
2. Теплый контур ( полы, стены, потолок) + огне\био защита, Ветрозащита, сетка от грызунов.
3. Крыша ( перекрытия по госту ) + кровля в темный, матовый профлист с выбором цвета.
4. Окна и дверь (пяти-камерные, энерго-сберегающие окна, двухконтурная входная дверь)
5. Вентиляция.
6. Водосточная система.
2. Теплый контур ( полы, стены, потолок) + огне\био защита, Ветрозащита, сетка от грызунов.
3. Крыша ( перекрытия по госту ) + кровля в темный, матовый профлист с выбором цвета.
4. Окна и дверь (пяти-камерные, энерго-сберегающие окна, двухконтурная входная дверь)
5. Вентиляция.
6. Водосточная система.
предчистовая отделка
1. Коммуникации ( подвод/разводка по дому)
2. Фасадная отделка ( Сайдинг, мягкий фасад, ПВХ, Металл, проф-лист, фасадные панели, имитация бруса)
3. полусухая стяжка пола
4. Внутренняя отделка гипсокартоном.
2. Фасадная отделка ( Сайдинг, мягкий фасад, ПВХ, Металл, проф-лист, фасадные панели, имитация бруса)
3. полусухая стяжка пола
4. Внутренняя отделка гипсокартоном.
Под ключ
1. Коммуникации ( подвод/разводка по дому)
2. Фасадная отделка ( Сайдинг, мягкий фасад, ПВХ, Металл, проф-лист, фасадные панели, имитация бруса)
3. полусухая стяжка пола
4. Внутренняя отделка гипсокартоном.
2. Фасадная отделка ( Сайдинг, мягкий фасад, ПВХ, Металл, проф-лист, фасадные панели, имитация бруса)
3. полусухая стяжка пола
4. Внутренняя отделка гипсокартоном.
Доверие и гарантии
Почему нам доверяют строительство своих домов
Количество
Более 50 построенных домов
качество
Гарантия 5 лет по договору
ответственность
Независимый технадзор
отчеты
прозрачная смета
открытость
постоянная связь с менеджером и фотоотчеты
семейная ипотека
Возможность построить дом по программе семейной ипотеки
Количество
Более 50 построенных домов
качество
Гарантия 5 лет по договору
ответственность
Независимый технадзор
отчеты
прозрачная смета
открытость
постоянная связь с менеджером и фотоотчеты
семейная ипотека
Возможность построить дом по программе семейной ипотеки
Оставьте
заявку —
— рассчитаем стоимость дома
под ваш участок
под ваш участок
Нажимая кнопку, вы соглашаетесь с политикой конфиденциальности.
Оставьте
заявку —
— рассчитаем стоимость дома
под ваш участок
под ваш участок
Нажимая кнопку, вы соглашаетесь с политикой конфиденциальности.